
Фундамент — основная опорная часть любого дома, несущая на себе вес всей постройки. Точность расчетов выдерживаемой нагрузки определяют прочность, долговечность и безопасность всего здания. Выбор типа и конструкции фундамента зависит от вида грунта, поэтому к его устройству желательно привлечь специалиста, который учтет все особенности расположения дома.
Ленточный фундамент на фото.
Плитный фундамент на фото.
Фундамент дома с подвалом на фото.
Какие бывают виды фундамента?
Рассмотрим для начала, какие бывают виды фундамента. Выделяют несколько типов фундаментов для индивидуального жилого дома.

Арматурный каркас — основа ленточного фундамента.
Ленточный фундамент представляет собой полосу железобетона, которая проходит по периметру дома и под всеми несущими стенами. При этом сечение фундамента одинаково по всему периметру дома. Ленточный фундамент широко применяется для строительства домов с каменными и бетонными стенами, тяжелыми перекрытиями, подходит для возведения домов без подвала или цокольного этажа. Он наиболее часто используется в индивидуальном строительстве, поскольку отличается умеренной стоимостью, надежностью конструкции и, несмотря на массивность, имеет простую технологию возведения.
Мелкозаглубленный ленточный фундамент неа фото.
Ленточный фундамент может быть мелкозаглубленным и заглубленным. Мелкозаглубленный ленточный фундамент применяется для строительства небольших каменных или деревянных домов на слабопучинистых грунтах и закладывается на глубину 50-70 см.
Заглубленный ленточный фундамент на фото.
Заглубленный ленточный фундамент используется в домах с толстыми стенами или тяжелыми перекрытиями, а также в домах с гаражами или подвалами. Закладывается на 15-20 см ниже глубины промерзания грунтов. Этот тип фундамента достаточно материалоемкий.
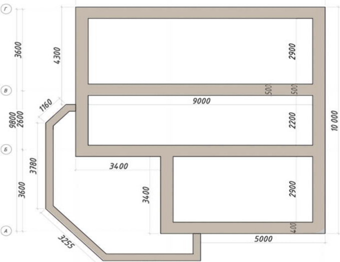
План ленточного фундамента на фото.
[includeme file=»wp-content/plugins/include-me/ya1-h2.php»]
Плитные типы фундаментов
Широко используются плитные типы фундаментов.
Конструкция плитного фундамента на фото.
Плитный фундамент закладывают под всем зданием. Он представляет собой монолитную железобетонную плиту, площадь которой соответствует площади возводимого поверх строения. Используется в домах с подвалом и без подвала в условиях сильного сжатия грунта. Оптимально устраивать плитный фундамент при строительстве домов без высокого цоколя, в этом случае плита является одновременно основанием пола.

Устройство плитного фундамента на фото.
Плитный фундамент отличается высокой надежностью, поэтому применяется при строительстве на любых видах грунта. Устройство плитного фундамента требует больших затрат, поскольку подразумевает увеличенный объем земляных работ и использование значительного количества строительных материалов.
План плитного фундамента на фото.
Блочные виды фундаментов
[includeme file=»wp-content/plugins/include-me/goog-right.php»]
Некоторые организации, занимающиеся строительством типовых деревянных и каркасных домов, предлагают в качестве фундамента устанавливать бетонные блоки — под углами здания и под продольными стенами (один по центру). Такие блоки укладывают на подготовленную площадку на поверхности земли. Выполненное подобным образом основание фундаментом не является. Рассмотрим блочные виды фундаментов.
Столбчатый фундамент. Как уже понятно из названия, представляет собой совокупность вкопанных в землю столбов. Такие столбы располагают в местах пересечения стен дома и в пролетах между ними. Это наиболее экономичный вид фундамента, но он подходит только для зданий с нетяжелыми конструкциями, например для одноэтажных и двухэтажных домов с легкими (не черепичными) крышами.
Столб можно сделать из бетона, железобетона или кирпича. Кирпичные столбы выполняются поперечным сечением не менее 40×40 мм, бетонные и железобетонные допускают меньшее сечение.











Свежее
Популярное