Cодержание

Как оборудовать подвал, чтобы он отвечал всем вашим требованиям, был сухим и теплым, вы узнаете на этой странице. Также вы получите информацию об устройстве подвала в частном доме и этапах строительства подземного помещения.
Очень многие захотят оборудовать свой дом подвалом. Некоторые привыкли заготавливать на долгую зиму овощи и им нужно специальное помещение для их хранения. Мастер-самодельщик, например, сможет в подвале организовать прекрасную просторную мастерскую, о которой мечтал всю жизнь. Оборудование подвала спортзалом позволит детям шумно резвиться, не мешая взрослым членам семьи. А возможно, у кого-то планы в отношении помещений подвала так велики, что нужно будет обустраивать полноценный этаж.
От того, для чего будут предназначено оборудование подвала в частном доме, зависят и финансовые затраты, связанные с его устройством. При этом нужно учесть, что самые большие расходы предстоят, если будет принято решение устроить в подвале жилые комнаты. Они вполне сопоставимы с издержками на строительство всего дома.
Однако существует масса помещений, необходимых для комфортного проживания, для которых трудно придумать место более подходящее, чем под домом: сауны, кладовки, сушилки, бассейны. Очень удобно размещать в подвале системы отопления и узлов ввода в дом инженерных коммуникаций.
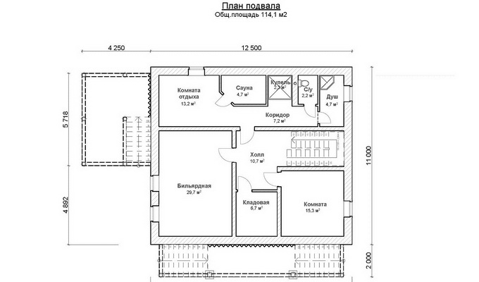
Устройство подвала в частном доме: проект
Устройство подвала под домом начинается с проекта — заявить о желании оборудовать свой каркасный дом подвалом следует проектантам, готовящим пакет документации. Этот пакет будет содержать план подвала, составленный с учетом всех пожеланий.
[includeme file=»wp-content/plugins/include-me/goog-right.php»]
Перед тем как оборудовать подвал в доме, ещё на этапе проектирования, следует учесть несколько основных требований. Первое из них — надежная гидроизоляция. Для ее устройства необходимо иметь четкое представление о характере грунта. В случае если почва на участке глинистая, минимальная глубина фундамента подвала должна быть ниже точки промерзания. Если под слоем глины лежит песок, то будет иметь смысл соорудить дренажные скважины для отвода воды из верхних глинистых слоев в песок.
На участке с песчаной почвой необходимо позаботиться о защите стен подвала от подтопления. Для этого по всему периметру дома устраивают отмостку. Надежно гидроизолированные (отлично подойдет двухслойная обмазка горячим битумом) щиты наружной обшивки стен подвала устанавливаются на 50-100 см ниже уровня земли, засыпаются мелким щебнем или шлаком слоем 30-70 см. После утрамбовки слоя засыпки, устраивается стяжка из цементно-песчанного раствора толщиной 15-30 см и шириной 70-100 см.
Устройство подвала под домом: вентиляция
Второе требование по оборудованию подвала — устройство вентиляции. В стенах устанавливаются специальные окна или продухи в количестве, достаточном для воздухообмена согласно санитарным нормам.
Как оборудовать подвал в доме: теплоизоляция
Нельзя забывать и о хорошей теплоизоляции стен и перекрытий в помещениях под домом. Материалы для этого используются те же, что и для конструкций всего дома. Хорошая теплоизоляция защитит подвал от появления конденсата, а дом — от существенных потерь тепла в зимнее время. Если теплоизоляция выполнена, владелец дома получает не только идеальный для жизни микроклимат в помещении, но и в дальнейшем экономит на ремонте несущих конструкций.


Свежее
Популярное