Cодержание
Также важно не забывать о требованиях к эксплуатации и регулярно проводить мероприятия по уходу за душевой, чтобы защитить её от гниения и ржавчины.
Условия выбора
Душ — это уже не роскошь, а жизненно важная необходимость. Это незаменимая вещь на даче, особенно для работающих на грядках людей.
Для взыскательной натуры предпочтительнее отдельное помещение в доме или баня с душем, но иногда на даче отсутствует электричество, не всегда хорошо с водой, часто не хватает времени или средств на капитальное строительство. В таком случае можно соорудить душ своими руками без больших затрат физических и душевных сил.
Обдумывая, какой летний душ лучше выбрать для дачи, следует исходить из реальных условий. Принимая решение, надо учитывать:
- Подключен ли дачный домик к водопроводной сети.
- Есть ли на даче электричество.
- Есть ли необходимость в подведении слива.
- Время проживания на даче.
- Материальные возможности.
Далее вы узнаете, какие бывают виды летних душей для дачи, как их правильно эксплуатировать и как за ними нужно ухаживать.
Стационарные души
Сезонный душ на открытом воздухе. Это легкая не утепляемая конструкция. При желании ее делают даже без теплообменников.

Строительство такого душа не требует больших затрат и времени. Он состоит из бака с краном, установленным на высоте человеческого роста. Бак можно укрепить на дереве или проложить шланг для полива, закрепив его на специальной стойке, а на землю положить резиновый коврик. Но такой душ подойдет на 1-2 раза, так как на месте купания при частом использовании образуется грязь, да и сам участок будет постоянно залит водой.

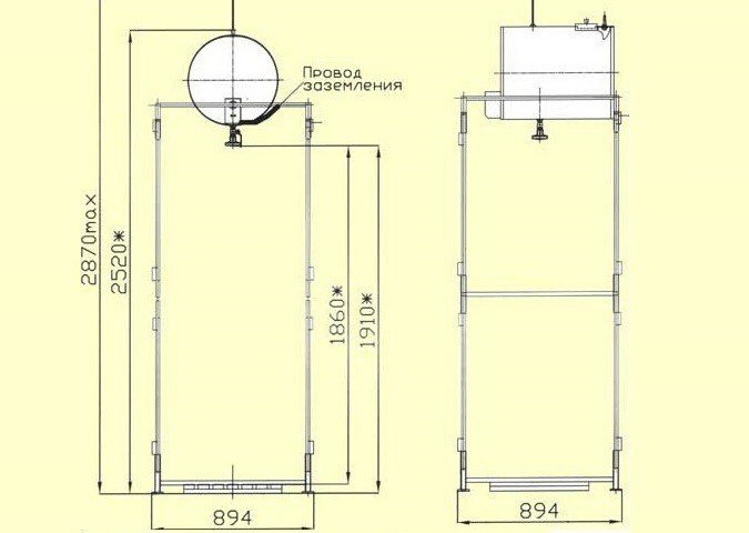
Сейчас во многих регионах можно приобрести уже готовую душевую кабину (садовый душ). Конструкция бывает представлена в разных вариациях в зависимости от типа и модели. Но преимущественно конструктивный вопрос решен весьма стандартно — это каркас из металлического профиля, обтянутый пленкой или водонепроницаемой тканью, с емкостью для воды на крыше. Вместо дверцы — откидной полог. На сборку такого душа потребуются 3-6 ч, его можно присоединить к хозяйственному блоку или поставить отдельно.

Также такую конструкцию можно сделать самостоятельно, поставив несколько деревянных брусьев и обтянув их любым подходящим материалом.
Летний душ подразумевает небольшое потребление воды, поэтому можно не делать поддон, а просто положить деревянную решетку или резиновый коврик под ноги. Если же вы планируете пользоваться душем на протяжении всего сезона, то конструкция должна быть более добротной и капитальной.

Душ в кабинке со сливом. На такой душ нужно потратить чуть больше сил и времени. Для самого простого объекта потребуются душевая кабинка, слив для сточной воды, бак или бочка для нее.
Готовые сборные души отличаются по уровню комфортности: в комплект может входить автоматическое устройство для подогрева воды или отдельная, но примыкающая комната для переодевания. Прогрев воды осуществляет ТЭН различной мощности с датчиком отключения при подогреве воды до определенной температуры.
Такой душ можно принимать при любой погоде. Но опытные дачники не рекомендуют использовать электричество для прогрева воды.

Душ в доме. Душ внутри дома должен располагаться у наружной стены с солнечной стороны — там будет теплее в холодный сезон. К тому же в таком случае легче устроить окно для освещения и вентиляции, подвести воду и организовать слив. Хотя стоит отметить, что современные достижения сантехники позволяют устроить душевую даже в спальне.
Для хорошего и удобного душа потребуются: душевая кабина, смеситель, душевая сетка, система водопроводов, внутренний водоприемник, водоотводящая труба, септик или яма для сточной воды.
Также необходимы водонагреватель, если на даче нет централизованной подачи горячей воды, питающий бак, два напорных бака для холодной и горячей воды, ручной насос для подкачки воды.
Обычно для душа в загородном доме берут смеситель с разборной сеткой, чтобы ее можно было легко прочистить. Диаметр отверстий должен быть несколько большим по сравнению с домашним душем, рассчитанным на чистую воду и большое давление. Однако существуют смесители с компенсатором давления, в которых при помощи специальной ручки и кнопки можно регулировать температуру воды. Термостатический смеситель для душа отвечает за регуляцию температуры и создает оптимальный напор воды; также он оснащен специальными очищающими фильтрами, которые гарантируют чистоту воды. Эти современные модели душа надежны и удобны в применении, они приспособлены к разнообразным положениям лейки и застрахованы от возможных повреждений.
Ниже описывается, какой мобильный душ можно купить на дачу и в чем преимущества таких конструкций.
Мобильные души
Для тех, кто проводит на даче несколько часов в день или бывает там только в выходные, подойдет мобильная (переносная) конструкция. Такое устройство позволяет принимать душ в любом удобном месте, некоторые модели работают в условиях отсутствия электричества.
Плюсы мобильных душей:
- Не нужно обустраивать фундамент и слив.
- Можно разместить в любом месте.
- Невысокая цена.
- Возможность мыться теплой водой: для маленькой емкости можно быстро нагреть воду на солнце, есть модели с подогревом.
- Удобный и компактный, можно положить в рюкзак или в багажник автомобиля.
Минусы конструкций:
- Души предназначены для легкого ополаскивания, а не для полноценного мытья.
- Некоторые устройства требовательны к качеству воды.
Условно переносные души можно разделить на несколько типов:
- Мобильные емкости со шлангом и душевой лейкой
- Души-насосы

Переносная емкость представляет собой помпу, которая под определенным давлением подает воду в душевую лейку. Объем емкости для воды (водонепроницаемый мешок или бак) составляет 20 л. Этого хватит, чтобы помыться одному-двум людям. Имеет мини-лейку, а на противоположном конце — петлю, за которую его можно подвесить на крючок или дерево.
Подача воды осуществляется путем нажатия на рычажок, который находится на ручке лейки. Для комфортного мытья в емкость нужно залить теплую воду или подвесить ее на солнце и подождать, пока она нагреется.

Мобильный душ-насос с подогревом – это электрический прибор, работающий от сети. Его опускают в бак, бочку или другую емкость с холодной водой. Для подачи жидкости на ручке лейки нужно нажать рычаг. Такой насос можно подключить к прикуривателю автомобиля.
За один раз можно нагреть 10-20 литров воды, на нагрев потребуется около 10 минут. В продаже можно встретить модели с подогревом, которые имеют два шланга и подсоединяются напрямую к крану с холодной водой.

Переносной душ «топтун» представляет собой резиновый коврик с двумя встроенными насосами. Вода подается путем поочередного нажатия педалей ногой. Под давлением жидкость поступает на душевую лейку. Чем быстрее человек топчет педали, тем сильнее напор.
Душ оснащен двумя шлангами, один из которых опускают в ведро или бочку, а второй присоединяют к лейке. Насадку можно держать в руках или закрепить на ветке дерева.

Садовый душ-стойка представляет собой стойку на треноге с душевой лейкой на конце, которую подключают к насосу или бойлеру.
Нижняя часть треноги заточена, поэтому она легко входит в грунт и обеспечивает надежное крепление конструкции.
Каркас душа выполнен из алюминия, поэтому он не подвергается коррозии от постоянного контакта с водой. Головку насадки можно вращать в разные стороны, штанга регулируется по высоте, поэтому душем удобно пользоваться людям с разным ростом. Включение, выключение душа и регулировка напора осуществляется с помощью рычага.
Перед эксплуатацией любой мобильной конструкции нужно ознакомиться с инструкцией по применению, после использования с душа удаляют мыло и следы загрязнений.
Выбор места для душа
Если предполагается возведение солидного дома со всеми удобствами, то нет смысла тратить силы на сооружение стационарного душа вне пределов основного жилища. Построить небольшой, но комфортный душ придется в том случае, если строительство основного дачного дома еще только начинается, а срок его завершения — в отдаленном будущем.
Существует несколько критериев выбора места, где можно поставить летний душ на даче:
- Душ с естественным нагревом располагают только на солнечном месте. Предпочтение отдают утренним и полуденным лучам, чтобы вода в баке прогрелась как можно раньше. Хорошо, если душевая кабинка или открытый поддон тоже будут прогреваться солнцем.
- Со стороны преобладающего ветра желательно прикрыть душ плотными стенками или кустарниками. Это требование относится и к закрытым душевым кабинкам, в которых отсутствует качественная изоляция стен.
- Душ следует располагать с учетом удобства подачи чистой воды (как можно ближе к колодцу или водопроводному крану) и слива сточных вод (в том числе устройства септика и дренажного колодца при необходимости).
- Не следует располагать душ на границе участка, необходим отступ хотя бы 1 м.
- Душ с дополнительным подогревом устанавливают как можно дальше от жилого дома из соображений пожарной безопасности.
- Оптимальным выбором для душа с отводом стоков самотеком является возвышенное место на участке. При этом следует помнить, что вода для поверхностного отвода должна быть чистой, без химических примесей (т. е. использовать шампуни, мыло, гели для душа нельзя). Кроме того, стоки не должны попадать на фундамент расположенного рядом здания.
- Душ с отводом воды в септик удобно устанавливать рядом с уличным туалетом, но при этом туалет должен быть оборудован качественной вентиляцией и канализацией с затвором, иначе в душе будет стоять неприятный запах.
- Для принятия полноценного душа удобнее выбрать место, скрытое от посторонних глаз, — уголок, который не просматривается с дороги и участков соседей. Такое место можно создать искусственно с помощью «зеленой» ширмы с вьющимися растениями.
- Душ не следует располагать посреди огорода: поверхностный сток воды может размыть корни растений, а рядом с септиком выращивание большинства плодородных и декоративных культур тем более затруднено.
На практике бывает и так, что некоторые условия противоречат друг другу, а потому приходится выбирать, чем лучше пренебречь. Например, иногда встает такой выбор: тянуть ли на большое расстояние водовод от дома или расположить душ с подогревом рядом с домом вопреки правилам пожарной безопасности. В данном случае лучше отдать предпочтение требованиям безопасности и потратить немного больше средств и времени на сооружение душа по всем правилам.
Характер и свойства грунтовых вод
При обустройстве садового душа необходимо помнить о характере и свойствах грунтовых вод. Если в саду песчаная или супесчаная почва, то в глубине она обычно подстилается глинистой породой. Тогда использованная вода от душа легко просочится внутрь почвы до слоя глины, а уже по ней обязательно попадет или в водоносный горизонт, или в реку либо другой местный водоем. Наверное, никому не захочется пить колодезную воду с примесью использованной воды от садового душа, даже если она и не содержит мыла.
Грунтовые — это подземные воды, которые содержатся в постоянном водоносном горизонте, расположенном первым от поверхности земли. Обычно они не прикрыты сверху сплошной «крышей» из водонепроницаемых пород, зачастую не имеют напора. На тех участках, где грунтовые воды имеют сверху местное водоупорное перекрытие, они приобретают местный напор.
При достижении буровой скважиной или выкопанным колодцем водоносного слоя уровень грунтовых вод всегда устанавливается на той глубине, на которой они были встречены. Их уровень и расход подвержены сезонным колебаниям, грунтовые воды весьма чувствительны ко всем атмосферным изменениям. В сухое время года их уровень снижается, во влажный сезон повышается.
Грунтовые воды образуются благодаря просачиванию (инфильтрации) под землю атмосферных осадков и воды из открытых водоемов: озер, рек или прудов. Иногда они пополняются восходящими водами из более глубоких горизонтов, в частности водами артезианских бассейнов.
Различные породы залегают в земной коре пластами. Одни легче фильтруют воду, другие почти не пропускают ее. Чем больше в породе пустот или трещин, тем выше ее водопроницаемость. Гравий, галечники, средние и крупные пески обладают высокой водопроницаемостью, тогда как глины и невыветриваемые скальные породы водоупорны. Глинистые пески, суглинки, мергели, лесс считаются полупроницаемыми для воды породами.
На территории средней полосы России они чаще залегают слоями, и каждый пласт породы, лежащий выше, служит кровлей для нижележащего пласта вне зависимости от его водопроницаемости.
Химический состав, уровень и расход грунтовых вод поблизости от водоемов и рек способны изменяться в зависимости от их гидравлической связи с поверхностной водой и системой водоемов. В обстановке влажного климата сильные процессы подземного стока и инфильтрации выщелачивают горные породы и почвы, в результате чего легкорастворимые соли, хлориды и сульфаты вымываются из горных пород и почв.
Считается, что вода с обычным мылом безвредна для растений. Однако опытные дачники все же не рекомендуют выливать воду от такой стирки даже в компостную кучу.
Под влиянием длительного водного обмена формируются грунтовые пресные воды, которые могут быть минерализованы лишь за счет сравнительно слабо растворимых солей, зачастую гидрокарбонатов кальция. Эти пресные грунтовые воды преимущественно распространены в степных, лесостепных и лесных регионах.
Эксплуатация и обслуживание
Для стабильной работы душа необходимо следить за исправностью системы, вовремя проводить ее обслуживание и ремонт.
Садовый душ должен хорошо проветриваться, иначе в нем могут появиться плесень и грибки. Если деревянные части строения не окрашены, нужно периодически проверять их целостность. Подгнившие части заменяют, чтобы гниль не распространилась на все строение.
Не забывайте время от времени осуществлять профилактику насадкам душа. Из-за хлорированной или жесткой воды они быстро приходят в негодность.
Периодически бак желательно обрабатывать каким-либо антисептическим средством, не наносящим вреда здоровью человека и окружающей среде. Можно использовать обычную перекись водорода или марганцовку, предварительно растворенную в стакане воды до исчезновения кристаллов.
Очень полезно добавлять в воду йод, но не часто, поскольку от него страдают стальные элементы конструкции: кран, бак.
Уход за стенами душевой кабины
Плитки в душевой кабинке лучше мыть мыльным раствором. Для сильно загрязненных плиток применяют специальные препараты. В таком случае плитку смачивают водой, посыпают препаратором и через 10 минут смывают его мокрой губкой.
Стены душевой кабины, окрашенные известью или клеевой краской, можно осторожно очистить чистой тряпкой из хлопка или льна, намотав ее на веник или швабру. Если стены окрашены латексной краской, их моют мыльным раствором, а затем протирают тряпкой, смоченной водой.
Защита древесины от гниения
Деревянный пол или стены душевой кабинки для большей сохранности целесообразно пропитать особыми средствами, предохраняющими дерево от гниения, грибковых образований и насекомых. Антисептическую обработку древесины можно производить щеткой или кистью.
Защищают деревянные детали от плесени с помощью специального состава, который можно купить или сделать самостоятельно. В металлической посуде нагревают 100 г сульфата железа, пока он не начнет белеть. Затем отделяют от него пятую часть и смешивают ее с 44 г обычных квасцов и 48 г поваренной соли. После чего смесь растворяют в 1 л прохладной воды. Этим раствором покрывают заплесневевшие места.
Можно защитить деревянные части туалетной или душевой кабинки водоотталкивающим покрытием. Для этого растапливают 200 г пчелиного воска и смешивают его с 200 г льняного масла. Отдельно при нагревании перемешивают 100 г канифоли и 160 г соснового скипидара. Затем обе смеси соединяют в большой посуде и нагревают на водяной бане до температуры 80 °C. Затем теплую смесь наносят щеткой или губкой на деревянные детали.
Консервация душа на зиму
Подготовку к зимней консервации следует начинать заранее по многим причинам. Вода, бывшая основой жизни приусадебного участка в летние месяцы, с наступлением холодов превращается в коварного врага в буквальном смысле слова. Расширяясь при замерзании, излишняя влага в состоянии привести в негодность всю инженерную инфраструктуру дачи.
В летнем душе требуется полностью спустить воду из емкостей. Освобожденные от воды шланги, с помощью которых летом вода подается в накопительную емкость душа, необходимо свернуть и убрать в сарай, чтобы их не повредило морозом.
Если душевая комната расположена внутри садового домика и в зимнее время в нем никто не будет жить, то воду нужно полностью спустить и продуть трубы воздушным компрессором. Бойлеры, насосы и прочие составляющие отопительной системы следует обесточить.
Если в систему горячего водоснабжения дачного дома входит накопительный бойлер, то воду из него надо слить и отключить его от сети электропитания во избежание пожара.
Если в дачном доме горячую воду обеспечивает двухконтурный газовый котел, то желательно получить консультацию специалиста, как удалить воду из змеевика газового котла.
Если по какой-то причине невозможно слить всю воду из водопроводных труб, то следует хотя бы перекрыть впускные краны.
Свежее
Популярное