Она компактна, обладает более высоким КПД, эффективно прогревает сразу два помещения, причём расход топлива совсем невелик, так как дрова не сгорают сразу, а медленно тлеют. Кроме того, такую печку можно оснастить достаточно большой варочной поверхностью.
Казалось бы, с появлением новых технологий старинные печи должны остаться в прошлом. Но они по-прежнему популярны. Каменные печи позволяют обогреть дом, приготовить вкусную пищу и просушить одежду.
Виды печей
В зависимости от строения щитка шведские печи подразделяют на виды:
- Печь с горизонтальным щитком — печь разогревается равномерно, но требуется большое количество прочистных отверстий, что усложняет конструкцию и делает ее более дорогой.
- Печь с вертикальным расположением дымоходных каналов и одним отверстием для их прочистки. Такую конструкцию строят между двумя комнатами, и одна из них будет нагреваться быстрее, так как в первом канале температура выше, чем в третьем.
- Печь с колпаковым строением топки. Прогревание печи происходит равномерно, и остывает конструкция относительно медленно.
В зависимости от типа конструкции шведская печь может быть:

Отопительно-варочной. Такая конструкция оснащена плитой, иногда и духовкой, водонагревательным баком и нишей для сушки.

В виде печи-камина. Ее располагают таким образом, чтобы отопительно-варочная часть конструкции была в кухне, а декоративная каминная — в гостиной или спальне. Подходит для создания романтического интерьера.

С лежанкой. Она напоминает русскую печь и имеет более сложную конструкцию.
Как видно на фото, от голландки шведская печь отличается тем, что ее можно поместить в двух смежных комнатах, а по сравнению с русской эта конструкция более компактная:



Особенности конструкции и принцип роботы
Классическая конструкция шведской печи для дома состоит из:
- Топки
- Поддувала
- Задвижки
- Плиты
- Ниши
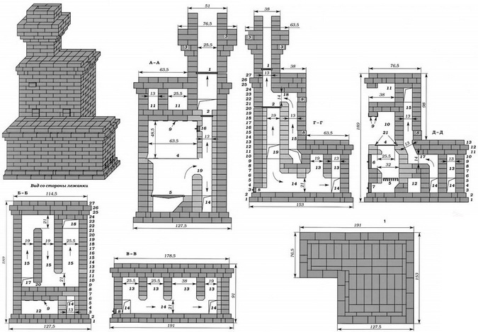
Посмотрите схему устройства шведской печи:

После разгорания топки дымовой газ идет под варочную плиту — плита и духовой шкаф нагреваются. Далее газы накапливаются в замкнутой отопительной камере и разогревают ее. Через дымовую трубу газы выходят наружу.
Воздух из духового шкафа почти сразу после нагревания поступает в помещение. Тыльная поверхность печи долго сохраняет тепло. После прогорания топлива нужно закрыть задвижку, чтобы печь не остыла.
Для растопки шведской печи подходят дрова, уголь, хворост, валежник, камыш.
Обычно печи-шведки размещают в простенке между кухней и жилой комнатой. Топку печи располагают в кухне, а заднюю стенку — в спальне или гостиной.
Это позволяет хорошо прогреть помещения небольшой площадью (до 50 м2) и экономно расходовать тепло.

Как и голландка, шведка компактна, занимает мало места и подходит для небольших загородных домов.
У шведской печи большая варочная поверхность, поэтому можно приготовить обед для всей семьи и нагреть воду.

По форме топка печи напоминает колпак. В ней дрова длительно тлеют, поэтому топливо расходуется экономично.
Для каждого варианта топки (летнего, осеннего и зимнего) предусмотрен определенный путь прохождения дымовых газов. При таком подходе летом можно готовить в печи без повышения температуры в помещении.

Система дымооборотов позволяет поддерживать печь постоянно в рабочем состоянии, без задымления, которое, как правило, происходит в начале отопительного сезона с обычными печами.
От русской печи шведка отличается тем, что быстро нагревается. Поэтому уже через 10-15 минут после розжига дров в помещении становится тепло.
Плюсы и минусы
Плюсы шведской печи:
- Компактность.
- Функциональность (отопление, варочная поверхность, нагрев воды и др.).
- Экономичность расхода топлива.
- Возможность отапливать сразу две комнаты.
- Высокий КПД.
- Возможность трех вариантов топки: летней, осенней и зимней.
Минусы шведской печи:
- Важно качество строительного материала (особенно кирпича).
- Сложность конструкции, поэтому сложить печь может только профессионал.
Выбор конструкции
Перед выбором конструкции стоит определиться, для чего предназначается печь. Если она будет отопительно-варочной, то ее размещают топкой на кухне и делают небольшого размера. Если назначение печи — обогрев дома, то сначала выбирают место, от которого тепло будет распространяться по всему дому.
Можно приобрести шведские печи в готовом виде. Производители оснащают их духовками, водяными контурами, варочной поверхностью. А можно пригласить профессиональную бригаду, которая сложит печь с учетом ваших требований.
Свежее
Популярное