Cодержание


Монтаж железобетонных лестниц может выполняться двумя способами: на стальных косоурах и собирая отдельные крупногабаритные ж/б-элементы. Если используется первый метод, возможны два варианта, а если второй – три. В зависимости от выбранной конструкции лестницы выполняют с фризовыми ступенями или без них, с двумя или одной, только верхней полуплощадкой.
Конструкции лестниц, состоящие из таких мелкоштучных элементов, как, например, отдельные железобетонные ступени, площадки, балки и косоуры, используют в тех помещениях, где не подходят по габаритам крупноразмерные сборные изделия. Кроме того, железобетонные лестницы возводят в частных домах, построенных по индивидуальным проектам.
Ниже подробно рассмотрены способы и особенности устройства таких конструкций.
Лестница из сборных железобетонных ступеней по металлическим косоурам
[includeme file=»wp-content/plugins/include-me/goog-left.php»]
Существует два способа выполнения железобетонных лестниц по металлическим косоурам: с фризовыми ступенями и без них.
Благодаря применению фризовых ступеней лестничные площадки обретают прямоугольную форму. Верхняя и нижняя фризовые ступени становятся ее частью, поэтому ширину лестничной площадки необходимо рассчитывать с учетом ширины проступи этих ступеней. В лестницах, которые не имеют фризовых ступеней, верхняя ступень также является элементом площадки, благодаря чему она имеет Г-образную форму. Такая конструкция длиннее, чем с фризовыми ступенями. Это обусловлено тем, что в лестницу аналогичной высоты и уклона необходимо добавлять еще ступеньку.
Если этого не сделать, то толщина лестничных площадок должна быть такой же, как и высота подступенка, т. е. более 140 мм. Площадки в конструкциях железобетонных лестниц обычно производятся из монолитного бетона.
Не рекомендуется заливать их таким образом, чтобы они имели большую толщину, так как значительный объем бетона утяжелит площадку и, следовательно, потребуется дополнительное армирование, возникнет необходимость в создании мощных подплощадочных балок.
Проще всего добавить по ступеньке в лестничные марши, а площадку оставить толщиной не более 100 мм.

Для изготовления косоуров железобетонных лестниц используются двутавровые или швеллерные балки. При применении косоуров с двумя перегибами на балках следует предварительно вырезать клинья либо сделать небольшие заготовки. Балки нужно нагреть, загнуть и сварить. В месте стыковки необходимо дополнительно приварить пластину из стального листа. Это будет способствовать увеличению длины сварного шва и укреплению узла.
[includeme file=»wp-content/plugins/include-me/goog-right.php»]
Для создания подплощадочных балок также используется швеллер или двутавр. На балки, которые стыкуются с косоурами, необходимо наварить коротыши из уголка, в которых должны быть просверлены монтажные отверстия под болты. Затем в ниши стен лестничной клетки следует установить балки, выровнять в горизонт по высоте проектной отметки. Балки в нишах нужно расклинить таким образом, чтобы они не упали на бок, т. е. не смогли вывернуться из плоскости установки. На данном этапе помещать балки в монолитную стену пока не следует, так как в дальнейшем, вероятно, их нужно будет переставить.
Первоначально необходимо установить нижнюю часть косоура и прикрепить к площадочной балке с помощью болта. Только после этого можно завести верхнюю часть и также прикрепить болтом. Если возникнет необходимость, то подплощадочные балки можно немного сместить по горизонтали и вертикали.
После сверки всех размеров (ширины площадок, отметок высоты и уклонов маршей) подплощадочные балки могут быть окончательно закреплены в нишах и замоноличены. Фиксация косоуров с помощью болтов носит временный характер. Она необходима только для того, чтобы сверить все параметры железобетонной лестницы и при необходимости внести исправления при установке ее элементов.
Окончательная фиксация косоура к подплощадочной балке должна осуществляться с использованием электросварки. Если есть возможность использовать одновременно и сварку и подъемный кран, то фиксацию косоура болтами можно не осуществлять, а работать на сварочных «прихватках» . Демонтировать монтажные стропы от косоура разрешено только после его надежного закрепления. Окончательное сваривание косоура и балки должно осуществляться также по периметру монтажного уголка, а не только по торцевому шву. Благодаря этому увеличится длина сварного шва и прочнее будет узловое соединение.

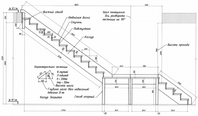
Марши лестниц производят из сборных железобетонных ступеней, которые могут быть двух видов: массивными сплошными или облегченными пустотелыми. Реже используют естественные камни твердых пород. Наибольшей популярностью пользуются стандартные железобетонные лестницы с наборными ступенями размерами 310 х 140, 300 х 150, 290 х 160, 280 х 170 мм. Их длина обычно составляет 1100, 1200, 1400 мм.
Значительным недостатком является большой вес таких ступеней — около 60-80 кг, поэтому для укладки потребуется напарник (хотя, по сравнению с другими вариантами ступеней, эти нетяжелые). Сборные железобетонные ступени при укладке лестницы должны располагаться снизу вверх, одна к другой, и фиксироваться за счет специальных пазов в нижней части ступени. На ее край с использованием кельмы сначала необходимо набросать цементно-песчаный раствор, затем уложить следующую ступень. В нижней части ступеней располагается закладная деталь. С её помощью железобетонные ступени лестницы привариваются к косоурам.

В дальнейшем ступени можно облицевать мраморными или гранитными проступями. В таком случае их толщина должна учитываться еще на этапе выбора высоты заливки лестничных площадок.
Далее вы узнаете об изготовлении маршей и площадок лестницы из монолитного железобетона .
[includeme file=»wp-content/plugins/include-me/ya1-h2.php»]
Изготовление маршей и площадок лестницы из монолитного железобетона
Лестничные площадки железобетонных лестниц обычно изготавливаются непосредственно на месте строительства из монолитного материала, но также их можно собрать из готовых железобетонных плит, которые укладываются на подплощадочные балки. Площадки из монолитного бетона, как правило, нуждаются в армировании сеткой, связанной из рифленых стержней диаметром более 10 мм и шагом стержней в обоих направлениях менее 200 мм. Нижний слой бетона должен составлять 20 мм. Он необходим для защиты арматуры от коррозии. Формирование его происходит с помощью установки вертикальных хомутов.

На монолитных железобетонных лестницах с фризовыми ступенями боковое ограждение опалубки обычно не устанавливается. В качестве нее выступают стены лестничной клетки и фризовые ступени. В таком случае длина фризовых ступеней должна быть больше, чем длина рядовых. Благодаря этому они будут смыкаться, и образовывать ровную площадку, продолжающую лестничную. Нижняя палуба опалубки должна быть сделана из отдельных досок или дощатого щита, установленного между подплощадочными балками.
Верх щита опалубки должен быть выполнен заподлицо с верхом подплощадочных балок. В результате железобетонная плита будет располагаться на балках.
После возведения лестницы подплощадочные балки и косоуры рекомендуется обернуть штукатурной сеткой и оштукатурить.
Для того чтобы зафиксировать сетку, к несущим балкам лестницы и косоурам необходимо приварить Коротыши из тонкой стальной проволоки. Затем следует нанизать на них сетку, натянуть ее, а штыри загнуть на нее же. Благодаря оштукатуриванию лестницы значительно повышается ее огнестойкость.
Для того чтобы сократить расход цементнопесчаного раствора и облегчить работу, внутреннюю часть балок и косоуров (между полками двутавра или швеллера) рекомендуется предварительно заполнить кирпичом, отобранным по размеру балок. Чтобы кирпич не выпадал, его следует прикрыть, приварив арматурную сетку или закрепив ее любым другим методом.
[includeme file=»wp-content/plugins/include-me/ya2-h2.php»]
Устройство типовой сборной лестницы из железобетонных элементов
Сборные железобетонные лестницы представляют собой несгораемые конструкции и монтируются в специальном помещении — лестничной клетке. Если есть возможность использовать крановое оборудование, то работа по их устройству железобетонной лестницы будет продвигаться быстрее.
В том случае, если сроки строительства поджимают, то рекомендуется остановить свой выбор именно на сборных лестницах из крупных железобетонных элементов.

При возведении жилых зданий наибольшей популярностью пользуются типовые железобетонные лестницы с уклоном маршей 1:2. В коттеджном строительстве распространены и более крутые лестницы, уклон которых составляет 1:1,75 и 1:1,5. По сравнению с типовыми они занимают существенно меньше пространства.
Изготовление маршей железобетонной лестницы выполняется в соотвествии с ГОСТом. Возможны несколько вариантов: ЛМ — плоские марши без фризовых ступеней; ЛМФ — ребристые марши с фризовыми ступенями; ЛМП — ребристые марши, которые имеют две полуплощадки или одну верхнюю полуплощадку.

Различие плоских и ребристых лестничных маршей заключается в том, что в первых ступени изготовлены на армированной плоской плите, а у вторых — на двух армированных железобетонных балках (косоурах). Лестничные марши обоих видов являются цельными железобетонными конструкциями, ступени в которых отлиты вместе с плитой или косоурами. Ребристые лестничные марши с полуплощадками представляют собой более массивные железобетонные элементы. В них объединены и ступени, и косоуры, и лестничные полуплощадки.
Для определенного лестничного марша изготавливаются специальные лестничные площадки. Рассмотрим основные их виды и принятые обозначения:
- 1ЛП — плоские площадки для маршей типа ЛM;
- 2ЛП — ребристые площадки для маршей типа ЛМ;
- ЛПФ — ребристые площадки для маршей типа ЛМФ;
- ЛПП — ребристые конечные полуплощадки для маршей типа ЛМП.
Лестничные марши железобетонных лестниц, площадки и ступени в зависимости от направления подъема бывают двух видов: правые и левые, т. е. в направлении против и по часовой стрелке.

До начала строительства дома все железобетонные лестницы должны быть вписаны в проект и внесены в поэтажный план. Сборные железобетонные лестницы необходимо возводить в строгом соответствии с рабочими чертежами проекта, где должны быть отражены все высотные разметки, горизонтальные размеры и монтажные зазоры. Установку лестниц в доме следует производить одновременно со строительством стен.
Перед тем как приступать непосредственно к монтажу лестничных площадок и маршей, с помощью рулетки необходимо еще раз их измерить, а затем сделать деревянный шаблон, который будет полностью копировать профиль опорной части лестничного марша. После этого на стенах лестничной клетки нужно произвести разметку мест установки площадок, нанести слой раствора и закрепить площадку. Далее необходимо проверить положение установленной лестничной площадки по вертикали и согласно плану. Если возникнет необходимость в корректировке ее положения, то подправить его можно, используя монтажные ломы, или путем поднятия конструкции краном и установки заново до тех пор, пока она не встанет согласно проектному плану.

Разметка верха площадок должна быть выполнена точно, как указано в проектной документации, в противном случае лестничный марш будет расположен с перекосом или вовсе может провалиться между площадками. Для того чтобы правильно произвести сверку площадок по высоте, рекомендуется воспользоваться деревянным шаблоном.
Перед установкой марша на опорных местах лестничных площадок следует устроить «постель» из цементно-песчаного раствора. Для этого необходимо набросать и разровнять его с помощью кельм.
При установке лестничных маршей один мастер должен находиться на нижней площадке, а другой — на верхней или на подмостьях неподалеку от лестничной клетки. Он первым будет принимать лестничный марш и размещать его в лестничной клетке.
На высоте примерно 30-40 см от места расположения марша следует плотно прижать его к стенке. Здесь также понадобится помощь еще одного-двух человек.
После этого с помощью крана необходимо установить на место сначала нижний конец марша, затем — верхний. Недочеты установки можно исправить, используя ломики, а затем разрешено-отцепить строп, замонолитить стыки между маршем и площадками цементно-песчаным раствором и установить ограждения.
Благодаря использованию типовых лестничных конструкций можно возвести двухмаршевые лестницы почти для всех стандартных высот этажей (2,7; 2,8; 3 и 3,3 м).
В лестничных клетках с поперечными несущими стенами используются площадки типа 1ЛП, 2ЛП и ЛПФ. При монтаже они своими торцами или опорными ребрами (консолями) входят в кладку стен.
Для площадок 1ЛП без опорного ребра существует и другой способ монтажа, при котором этажная и междуэтажная площадки устанавливаются с опорой на стальные консольные кронштейны. Эти кронштейны, в свою очередь, должны быть жестко посажены на анкерные крепежи в стенах лестничной клетки.

В таком варианте несущими могут быть все стены лестничной клетки. Марши типа ЛМП представляют собой консольные конструкции и монтируются в зданиях с продольными несущими стенами.
При строительстве малоэтажного коттеджа сборную железобетонную лестницу рекомендуется возводить в открытой лестничной клетке (в нише). При определенной планировке здания с целью экономии пространства этажные лестничные площадки можно не устанавливать, а восхождение на лестницу и спуск с нее, возможно, устроить непосредственно с этажных плит перекрытия.
При таком варианте лестничный марш в этом случае должен опираться на несущую перемычку или железобетонную балку.
Запрещается в качестве опоры использовать плиту перекрытия. Высота установки перемычки (или балки) должна определяться таким образом, чтобы высота конечных ступеней была такой же, как и рядовых ступеней марша, т. е. должна учитываться вся толщина напольного покрытия на плитах перекрытия.
Если вход в здание устроен через лестничную клетку под первой промежуточной площадкой, то при высоте этажа в 2,8-3 м необходим монтаж цокольного марша в 3-6 ступеней, который будет вести на первую этажную площадку. В таком случае следует использовать конструкцию из наборных железобетонных ступеней, уложенных по стальным косоурам или кирпичным стенкам.
Свежее
Популярное