Cодержание


Любые лестницы состоят из конструктивных элементов с разной функциональной нагрузкой. К примеру, лестничная конструкция с одной центральной тетивой выглядит легкой, изящной и воздушной, но степень надежности лестницы на двух косоурах намного выше. То же самое касается и других лестничных элементов – выбор их не может производиться случайно, исходя исключительно из соображений декоративности конструкции.
Основными элементами лестницы являются лестничный марш (пролет), площадка (лестничная клетка), тетивы или косоуры, а также ограждение.
Лестничный марш и его элементы
[includeme file=»wp-content/plugins/include-me/goog-left.php»]
Элементами лестничного марша, по которому производится движение, являюится ступени и наклонные балки.
В ступени входят проступи и подступенки. Общая высота лестницы и ее уклон определяются шириной проступи и высотой подступенка.
По типу устройства лестничные марши делятся на прямо- и криволинейные, дугообразные и др. Для поворотных сооружений, а также для конструкций, соединяющих более двух этажей, полезная ширина марша должна составлять не менее 1000 мм. Это необходимо для обеспечения одновременного свободного прохода двух человек. Одновременно ширина маршей должна быть неизменной на всем их протяжении.
Ступени – одни из основных элементов конструкции лестницы. Они начинаются с нижней фризовой ступени и заканчиваются верхней, которая представляет собой не только верхнюю точку марша, но и соединительное звено с лестничной площадкой. В промежутке между ними находятся основные ступени.
Эти элементы лестниц в здании могут различаться своим положением в марше, а также проекцией. По форме выделяют прямые, дугообразные и клинообразные (забежные) ступени.

У прямолинейных лестниц размер проступи равен ширине ступени, которая определяется по центральной оси марша, у криво — и дугообразных лестничных конструкций его можно вычислить по средней линии хода (ходовой полосе). Высота подступенка при любом типе ступеней равна разнице между уровнями ступеней (их среднему арифметическому).

Исходя из математических расчетов и общепринятых правил, в одном марше должно быть минимум 3 ступени, а их максимальное количество не должно превышать 18. Это оптимально для жилого дома. Если в лестничном марше будет менее 3 ступеней, то можно оступиться, а при слишком большом их количестве подъем будет утомительным, поэтому желательно устроить промежуточную лестничную площадку. Рекомендуется выполнять нечетное количество ступеней, так как удобнее наступать на лестницу и сходить с нее с одной и той же ноги.

У прямолинейных лестниц ходовая полоса располагается в середине ширины марша.

У криволинейных конструкций она может находиться в стороне от края пролета примерно на 400-500 мм.

У винтовых лестниц ходовая полоса делается на таком же расстоянии от оси центральной опоры.
Различные по форме центральные стойки (как круглые, так и многоугольные) имеют множество функций, так как они не только несут собственный вес, но и нагрузку, передающуюся ступенями и всей лестницей. В некоторых случаях эти конструктивные элементы лестницы здания могут брать на себя функцию опоры верхнего перекрытия.
Очень важно верно определить общий подъем. Если будет допущена ошибка или неправильно рассчитано соответствующее расстояние, то вверху либо внизу появится неполный подступенок. Чаще всего ошибки возникают из-за измерения расстояния между отсутствующими элементами.
[includeme file=»wp-content/plugins/include-me/ya1-h2.php»]
Элементы лестничной клетки, косоуров и ограждений
[includeme file=»wp-content/plugins/include-me/goog-right.php»]
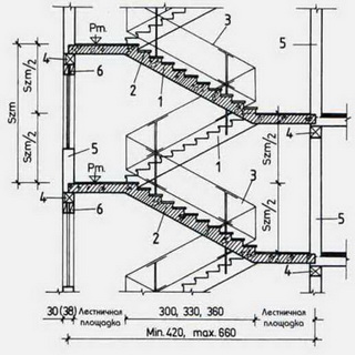
Между лестничными маршами находятся лестничные площадки (клетки), среди которых выделяют цокольные (или нижние), этажные, совпадающие с уровнем пола определенного этажа, и промежуточные, т. е. располагающиеся между этажами. Именно промежуточные лестничные площадки способствуют облегчению эксплуатации лестниц с большим количеством ступеней (более 18), а также поворотных.
Конфигурация лестничных площадок может быть разнообразной. Встречаются как четырехугольные, так и многоугольные, а также площадки, выполненные по индивидуальному проекту. Они не могут быть уже лестничного марша и шире 1200 мм.
Длина площадки должна быть не менее удвоенной длины шага среднего человека, т. е. не менее 1400 мм.

При расчете параметров элементов лестничной клетки, располагающейся перед дверью, которая открывается в сторону лестницы, следует учитывать ширину дверного полотна и возможность удобного и безопасного положения человека у двери в момент ее открывания.

Межлестничные проемы также отличаются большим разнообразием форм. Они могут быть выполнены в виде четырехугольника, круга, иногда даже эллипса или треугольника. Если дом средней высоты, то ширина лестничного проема может достигать 300 мм.
Ступени лестничного марша, как правило, располагаются на одной или двух наклонных балках, именуемых тетивами и косоурами. Косоуров может быть три, тогда средний из них является промежуточным. Они, в свою очередь, опираются на балки, на которых расположены лестничные площадки.

Существуют и бескосоурные лестницы, где марши и площадки одним концом или стороной встроены в стену, а у противоположного конца или стороны полностью отсутствует опора. Такие сооружения чаще всего монтируются в домах с небольшой проходимостью.
Преимуществом бескосоурных лестниц считается изготовление и монтаж непосредственно на месте установки. Есть и определенные недостатки: например необходимость тщательного и длительного расчета каждой ступени, а также их высокая звукопроводимость.
Для удобства и безопасности передвижения по лестнице должны быть установлены ограждения, поверх которых размещаются поручни. В качестве материала для ограждений может использоваться металл, дерево, кирпич, стекло и т. д.
Высота элементов лестничного ограждения для междуэтажных лестниц составляет не менее 900 мм, но она может быть увеличена до 1500 мм, если лестницей пользуются дети.
На этих фото показаны основные элементы лестниц:


[includeme file=»wp-content/plugins/include-me/ya2-h2.php»]
Расчет размеров элементов лестницы в доме
При составлении проекта лестничной конструкции в доме необходимо придерживаться определенных требований и условий. Так, например, нужно учитывать, на какой тип движения должно быть рассчитано сооружение. Следует знать, какие нагрузки оно будет выдерживать при эксплуатации (возможно, лестница будет предназначаться не только для людей, но и для перемещения грузов). Рекомендуется учитывать такие параметры, как разница между этажами или уровнями, площадь и форма помещения, в котором будет возводиться конструкция.

После выбора типа лестницы для дома необходимо определиться с ее параметрами: высотой подъема, площадью лестничной конструкции, уклоном (крутизной), количеством маршей и ступеней, шириной проступи и ступени. Также важны высота подступенка и ступени, число и длина лестничных площадок. Между ними существуют определенные соотношения, поэтому параметры лестницы не выбирают по своему желанию. Например, площадь прямой лестничной конструкции зависит от высоты подъема и уклона. А площадь и высота подъема будут определять параметры уклона. В процессе разработки лестничной конструкции некоторые характеристики задаются проектом, другие вычисляются. Например, зная площадь лестницы в плане, можно рассчитать ее уклон, а также без труда определить количество ступеней и т. п.
При расчете размера элементов лестницы большое значение имеет ширина лестничного марша. При расчетах следует учитывать, что для прохода по лестнице одного человека вполне достаточно будет 600-700 мм.
Но если принять во внимание встречное движение или необходимость переноса каких-либо больших предметов, то в этом случае сооружение должно иметь минимальную ширину 800 мм, а лучше всего — 900-1000 мм. При этом оно, должно быть, простой конфигурации и располагаться вдоль одной стены.
Перед тем как переходить непосредственно к конструированию, следует определиться с размерами её элементов. Для этого необходимо уточнить место сооружения на плане, его схему, габариты ступеней и определить высоту этажа.
Свежее
Популярное